복잡한 도면 파일을 열어야 할 때 프로그램이 없어 당황했던 경험 한 번쯤 있으실 거예요. 특히 dwg 확장자를 열 수 있는 환경이 없다면 작업 속도도 느려지고 파일을 누군가에게 다시 요청해야 하는 상황이 생기기도 하죠. 그래서 간단하게 파일만 확인할 수 있는 오토캐드 뷰어가 유용하게 쓰이곤 합니다.

프로그램 설치 없이도 빠르게 열 수 있고 다양한 뷰어가 있다는 점에서 눈여겨볼 만한데요. 기능은 간단하지만 필요한 핵심만 갖추고 있어 무겁지도 않고 부담도 적습니다. 지금부터 어떤 점이 괜찮은지 차근차근 알아보겠습니다.
오토캐드 뷰어 무료 다운로드
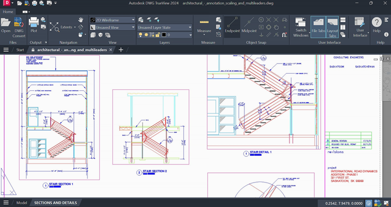
오토캐드 뷰어는 dwg 파일을 손쉽게 열어볼 수 있는 프로그램입니다. 복잡한 설치나 고사양 환경이 필요하지 않아서 누구나 부담 없이 사용할 수 있습니다. 단순히 열어보는 데 그치지 않고 확대나 축소는 물론 다양한 각도에서도 확인이 가능해 도면을 자주 확인하는 분들에게 실용적인 방식입니다. 오토캐드 뷰어 무료 다운로드는 오토데스크 홈페이지에서 받을 수 있습니다.
[Autodesk - https://www.autodesk.com/viewers]
1. 처음 시작하면 윈도우용 뷰어 항목을 누른 뒤 DWG TrueView를 선택해요. 이 뷰어는 DWG나 DXF 파일을 열거나 다른 형식으로 바꿀 수 있는 기능을 갖고 있어요.

2. 이어서 'Get started'를 눌러 설치 페이지로 넘어가요. 운영체제와 언어, 버전을 고른 다음 아래쪽에 있는 설치 항목을 눌러 설치 파일을 받아주세요.

3. 프로그램 설치가 끝났다면 브라우저에서도 파일을 열 수 있는 Autodesk Viewer 화면이 나와요. 여기서 '보기 시작하기'를 누르면 다음 단계로 넘어가요.

4. 처음 사용하는 경우 간단한 가입 과정이 있어요. 이름과 이메일, 비밀번호를 입력하고 약관에 동의한 다음 계정을 만들어야 해요.

5. 계정을 만들고 나면 파일을 올릴 수 있는 공간이 나타나요. '새 파일 업로드'를 눌러 가지고 있는 도면 파일을 올리면 돼요.

6. 파일 안에 연결된 다른 파일이 있는 경우 따로 추가로 올려야 해요. 그래야 전체 설계가 정확히 보여지기 때문에 함께 업로드하는 게 좋아요.

7. 업로드가 끝나면 뷰어 창에서 도면을 직접 확인할 수 있어요. 확대나 축소는 물론 세부 요소까지 깔끔하게 볼 수 있어서 실무에도 충분히 쓸 수 있어요.

꼭 수정하지 않아도 도면 내용을 확인해야 할 때 가볍고 빠르게 사용할 수 있는 오토캐드 뷰어는 작업 흐름을 부드럽게 만들어줍니다. 처음 사용하는 분들도 부담 없이 접근할 수 있어 여러모로 유용한 도구인데요. 파일만 열어보는 용도로도 충분히 쓸 수 있어 자주 활용하게 될 거예요. 활용 방법만 알아두면 복잡할 게 없으니 천천히 시도해보셔도 좋아요.